









Building Smarter with BIM & Steel Detailing Expertise
Founded under the vision of Precise Rebar, adBIM Steel Solutions Pvt Ltd is built to serve the growing global demand for accurate steel detailing, rebar estimation, and BIM modeling services..
Our focus lies in delivering highly detailed, fabrication-ready outputs using advanced tools like Tekla, Revit, and Rhino—tailored for engineers, fabricators, and contractors across industries. We bring innovation, accuracy, and code compliance to every project.
Driven by a detail-first culture and a team of passionate modelers, we are committed to elevating construction workflows with digital precision.
Our Services
Reliable Detailing.
Smart
Modelling.
Independent Review & Auditing for Steel Detailing
We offer expert third-party review and auditing services for structural steel models and drawings. Our thorough QA/QC process detects clashes, design errors, and code violations to ensure full constructability before fabrication. Trust our independent reviews to guarantee industry compliance, eliminate costly mistakes, and deliver a smooth, reliable, fabrication-ready detailing process.
BIM Modelling Services
Our expert team creates fully coordinated, intelligent 3D BIM models for steel and concrete structures using Revit, Tekla, and Rhino. We ensure precise planning, clash detection, and seamless integration across all disciplines—architecture, structure, and MEP. Experience enhanced constructability and faster project delivery through our comprehensive digital construction workflows.
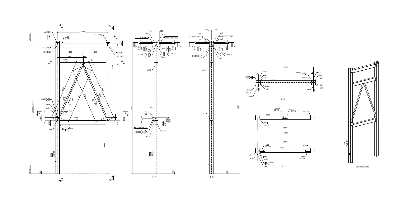
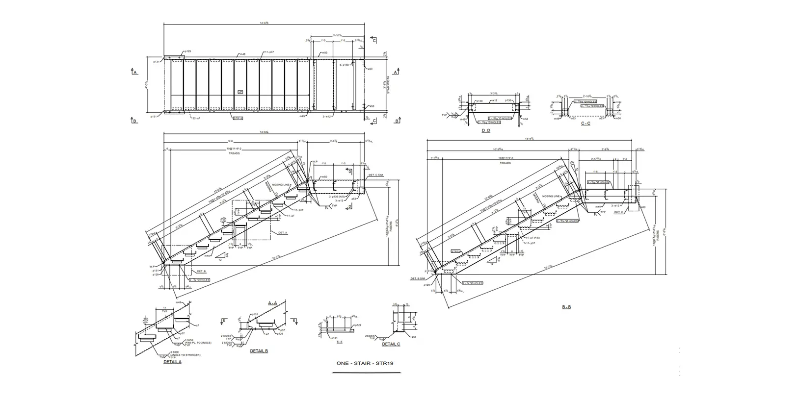
Structural Steel Modelling & Detailing
We deliver precise 3D modelling and fabrication-ready steel detailing using industry-leading Tekla software. Our expert team ensures every connection, bolt, weld, and beam is accurately placed and fully compliant with global standards including AISC, EN, IS, and BS. Count on us for error-free drawings, faster project delivery, and seamless coordination to bring your structural steel projects to life with unmatched precision.
Steel Detailing Sectors are,
Rebar 3D & 2D Detailing Services
Our expert team delivers code-compliant rebar shop drawings that enhance fabrication accuracy and on-site installation. Reduce clashes, speed up workflows, and build with confidence. From precise shop drawings to efficient bar bending schedules, Precise Rebar crafts detailed rebar packages that minimize on-site clashes.
Rhino Grasshopper Automation & Tekla API Services
We offer advanced automation solutions using Rhino Grasshopper and TEKLA API to streamline steel modelling and detailing workflows. Our custom scripts and integrations enhance efficiency, reduce manual tasks, and improve accuracy. Empower your projects with cutting-edge technology for faster, smarter structural design and fabrication.
Trusted Across Borders
We Serve in the
USA, Canada & Australia
Frequently Asked Questions
About Our BIM & Steel
Detailing Services
1. What services does adBIM Steel Solutions provide?
adBIM Steel Solutions delivers independent steel detailing audits, BIM modelling/coordination, structural steel detailing, rebar 3D/2D detailing, and Rhino–Grasshopper automation via Tekla API—covering QA/QC, clash detection, federated models, shop/erection drawings across industrial, commercial, bridges, warehouses, power plants, plus rebar models/drawings, BBS, and custom parametric automation.
2. Which software tools do you use?
Our team uses Tekla Structures, SDS/2, Revit, AutoCAD, Navisworks, Solibri, Trimble Connect, Rhino with Grasshopper, RebarCAD, BIMcollab, Bluebeam, Aconex, and Autodesk Construction Cloud/Docs.
3. What are typical project timelines?
Project timelines vary by complexity: small to medium projects take 2-4 weeks, while larger industrial structures require 6-12 weeks. We provide detailed schedules during initial consultations based on structural complexity and deliverable requirements.
4. What deliverables do you provide?
Our comprehensive packages include fabrication-ready 3D models, detailed shop drawings, erection drawings, bill of materials (BOM), and precise connection details. All deliverables are prepared for direct use in fabrication and construction phases.
5. How do you ensure quality and accuracy?
We implement rigorous multi-stage QA/QC processes including model verification, clash detection using advanced software, code compliance checks, and independent third-party reviews. This ensures constructability before fabrication begins.
We’re looking for talents!
Join our team – Build your future with adBIM.
Tekla Fresher
Region : USA/Canada/Australia
Experience : 0-3yrs
Education : DCE/B.E. Civil
Sr. Tekla Steel Detailer
Region : USA/Canada/Australia
Experience : 4-7yrs
Education : DCE/B.E. Civil
Junior Tekla Steel Detailer
Region : USA/Canada/Australia
Experience : 0-3yrs
Education : DCE/B.E. Civil
Reach Out to adBIM
Your Detailing Queries, Answered
Call Us Now
AUS Client Manager: +1 614 888 44119
US
Client Manager: +1 512 960 1724
HR Manager: +91 82201 55527
Admin:
+91 82201 55534
Our Location
No 70 2nd Floor, Sakthi Complex, Hasthampatti,
Salem, Tamil Nadu,
India, 636007.
Write Us Now
info@adbimsteel.com